











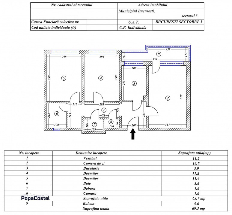
Piata Ramnicu Sarat de vanzare apartament de 3 camere de tip decomandat, cu suprafata utila de 63,70 mp si un balcon de 5,60 mp, situat la etajul 5 din 10 al unui bloc construit in 1965, prevazut cu lift si rampa de acces pentru persoane cu dizabilitati. De asemenea, imobilul este reabilitat termic si dispune de interfon. Locuinta este bine compartimentata si cuprinde un living de 16,70 mp, doua dormitoare confortabile de 11,80 mp și 11,90 mp, bucatarie, baie, vestibul spatios, debara si camara. Apartamentul dispune de toate utilitatile necesare (apa, gaz, electricitate), fiind o alegere inspirata pentru cei care isi doresc o locuinta intr-un cartier ingrijit, cu acces facil catre centrul Bucurestiului. Zona este una linistita si verde, in imediata apropiere de Piata Ramnicu Sarat, mall Park Lake si parcul I.O.R., cu acces rapid la scoli, farmacii si spitale, dar si la mijloacele de transport public, fiind doar cateva minute de mers pe jos pana la statiile de tramvaie, autobuze, troleibuze si statiile de metrou Dristor. Apartamentul se vinde complet mobilat, asa cum apare in imagini, insa se poate vinde si nemobilat. Suntem agentie imobiliara si percepem comision. Va stam cu placere la dispozitie pentru programarea unei vizionari. Mai multe oferte, detalii si informatii sunt disponibile pe site-ul nostru: PopaCostel.ro